-
-
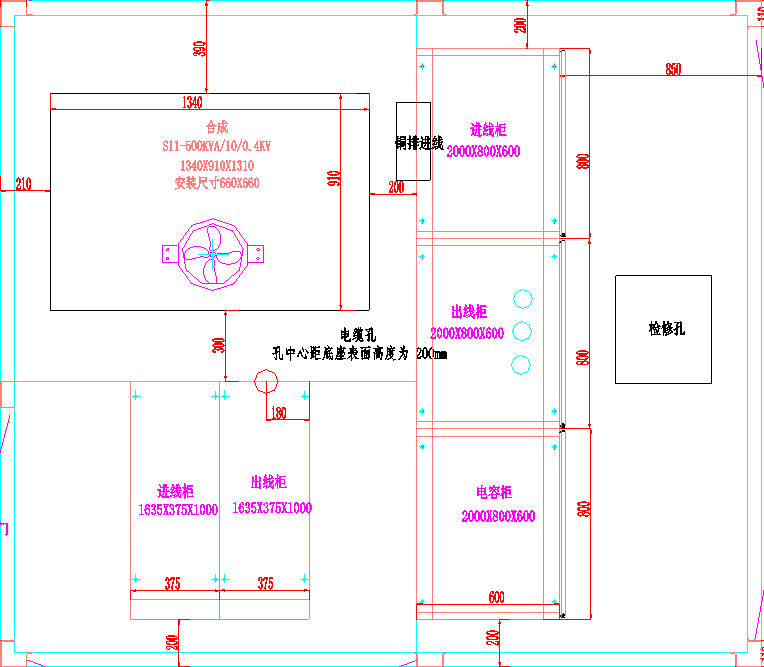
【主要參數】:S11-500KVA變壓器--高低壓配電柜--品字形排列
【方案優勢】:箱式變壓器將傳統變壓器集中設計在箱式殼體中,具有體積小、重量輕、低噪聲、低損耗、高可靠性,廣泛應用于住宅小區、商業中心、輕站、機場、廠礦、企業、醫院、學校等場所。
【組成部分】:由高壓開關柜、油浸式變壓器、低壓開關柜、箱變外殼組成
-
-
【主要參數】:50-500T/H
【方案優勢】:美式箱變是將變壓器器身、高壓負荷開關、熔斷器等元器件一同放在變壓器油箱內,因浸在油中,元件體積大為縮小,結構更為緊湊,安裝方便、靈活。全絕緣、全密封結構、安全可靠、操作方便、免維護。廣泛應用于住宅小區、高業中心、廠礦企業、機場、車站、學校等場所。
【組成部分】:美式箱變是由高壓開關設備、配電變壓器和低壓配電裝置等設備組成
-
-
【主要參數】:10-280t/h
【方案優勢】:高壓環網柜是一組輸配電氣設備(高壓開關設備)裝在金屬或非金屬絕緣柜體內或做成拼裝間隔式環網供電單元的電氣設備,其核心部分采用負荷開關和熔斷器,具有結構簡單、體積小、價格低、可提高供電參數和性能以及供電安全等優點。它被廣泛使用于城市住宅小區、高層建筑、大型公共建筑、工廠企業等負荷中心的配電站以及箱式變電站中
【組成部分】:高壓環網柜是由高壓進線柜、高壓出線柜、計量柜、PT柜等設備組成
-
-
【主要參數】:0.18-7(m3/min)
【方案優勢】:地埋式箱變所選用的地埋式變壓器箱體外殼采用防腐不銹鋼制作,全密封,高低壓進出線采用防水全密封、全絕緣、全屏蔽的接線方式。保證了地埋式變壓器的防腐和密封能力,整體防護等級達到IP68,可浸沒在水中運行。
【組成部分】:地埋式箱變主要由地埋式變壓器和廣告燈箱式的戶外開關柜設備組成。
-
-
【主要參數】:視工藝而定
【方案優勢】:全密封、全絕緣、結構緊湊、外形美觀,無須配電房,可直接安放在室內或室外,也可安放在街道兩旁和綠化帶內,可靠地保證了人身安全,既是供電設施,又可裝點環境。
【組成部分】:由高壓開關柜、變壓器、低壓開關柜、彩鋼板外殼組成













